创意蓝图跃然纸上,设计思维照进现实
日期:2026-01-05 16:08:11 作者:严贤钊 来源:
本周,12月29日-12月31日我院室内艺术设计与建筑专业中住宅室内设计课程为期一学期的核心课程圆满结课,在第18周,同学们于课堂当中集中展示了本学期最终的作业成果——一系列完整的室内空间别墅专题的设计方案,包含精细的效果图与规范的施工图纸,标志着学生们从概念构思到技术表达的能力飞跃。
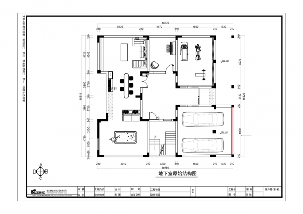
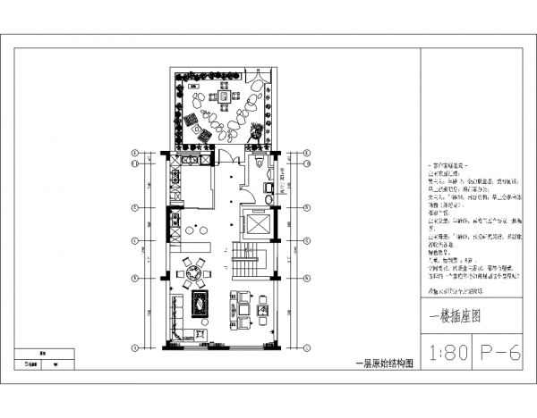
本次结课作业要求每位学生完成一个完整的设计项目。从学生作业作品中,看出,高清效果图部分尤为引人注目,从极具未来主义的风格,到融合本土文化的空间体验,再到体现可持续理念的局部规划,一幅幅逼真的可视化图像不仅展现了学生们丰富的审美想象力与空间塑造能力,更清晰地传达了其设计主题、氛围与功能构想。这些效果图是设计理念最直观、最具感染力的呈现。与之相辅相成的是严谨专业的全套施工图纸。平面图、立面图等图纸上精确的尺寸标注、材料说明与工艺要求,体现了学生们将天马行空的概念落地为可实施建造方案的技术功底。这是设计从“纸上谈兵”走向“现场施工”的关键桥梁,展现了同学们对结构、尺度、规范与细节的深入考量。
![]()
![]()
![]()
![]()
![]()
![]()
在成果展示交流中,同学们分享了深刻的创作感悟,大家普遍认识到,效果图与施工图并非简单的先后关系,而是贯穿设计始终、不断互文与校正的统一体。效果图追求艺术的感染力与愿景的表达,而施工图则关乎工程的逻辑与现实的约束,这一过程极大地锻炼了同学们的全局思维与解决问题能力,让他们深刻体会到,优秀的设计既是美的创造,更是严谨的技术协调与人文关怀的融合。
![]()
![]()
![]()
此次结课成果不仅是对本学期学习成果的一次集中检阅,更是学生们迈向专业设计师的重要一步,它充分展示了我院室内设计专业教学在激发创意与夯实技能相结合方面取得的扎实成效,为未来培养更多兼具艺术素养与工程实践能力的复合型设计人才奠定了坚实基础。
供稿人:严贤钊
- 上一篇:没有了
- 下一篇:期末课堂上的特别“礼”赞 ——软装与陈设设计课程表彰优秀学子,传递育人温度